Добрая (бревно)
Технология строительства:
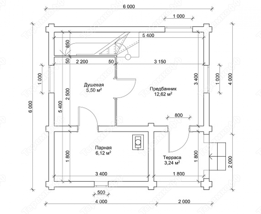
Общая площадь:
36 м2
Размеры по фундаменту:
6х6 метров
Сроки строительства:
Комплектация
| Комплектация бани | Под усадку | Под ключ |
| Технология строительства | Оцилиндрованное бревно естественной влажности | Оцилиндрованное бревно естественной влажности |
| Линейные размеры | 6х6м | 6х6м |
| Площадь застройки | 36 кв.м. | 36 кв.м. |
| Диаметр бревна | 200мм | 200мм |
| Фундамент | Винтовые сваи | Винтовые сваи |
| Наружная отделка фронтонов | Имитация бруса сорт АБ, 15 мм (сосна) | Имитация бруса сорт АБ, 15 мм (сосна) |
| Внутренняя отделка | Вагонка, 12 мм (сосна) | |
| Настил пола | Шпунтованная доска, 35 мм. | |
| Кровля | Цветной профлист | Цветной профлист |
| Утепление | Базальтовая вата, 50мм | |
| Влагоизоляция | Еврокрон | Еврокрон, изоспан |
| Окна | Деревянные - 7шт | |
| Дверь | Металлическая - 1шт, банные - 3шт, балконная - 1шт | |
| Высота потолка | Первый этаж - 2100мм | |
| Второй этаж - 2200мм | ||
| Печь | Термофор "Тунгуска"с баком на трубе 50л и дымоходом(сэндвич трубы) | |
| Доставка | Оплачивается дополнительно | Оплачивается дополнительно |
| Стоимость | 686 100р. | 940 100р. |
Цена: от 686100 руб.
Приобрести в кредитОтзывы
Похожие проекты
Недавно просмотренные
25.03.2025
ОСТАЛИСЬ ВОПРОСЫ?
