Домовой 2
Технология строительства:
Профилированный брус
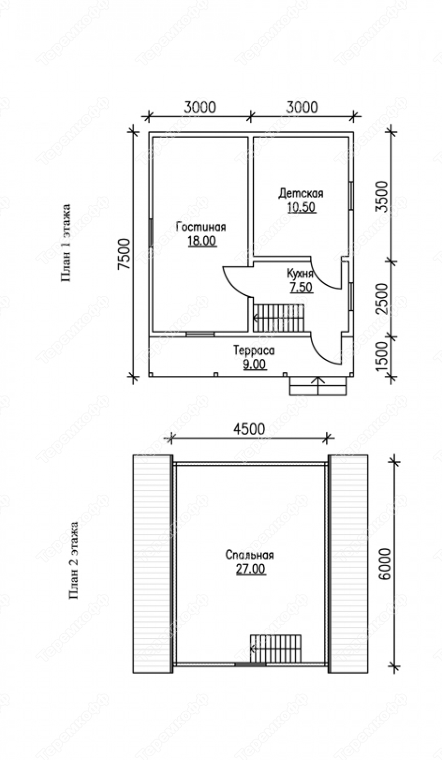
Общая площадь:
72 м2
Размеры по фундаменту:
6х7,5 метров
Сроки строительства:
14-20дней
Комплектация
| Комплектация дома | Под усадку 150 | Под усадку 200 | Максимум | Премиум |
| Линейные размеры | 6х7,5м | 6х7,5м | 6х7,5м | 6х7,5м |
| Общая площадь | 72 кв.м. | 72 кв.м. | 72 кв.м. | 72 кв.м. |
| Технология строительства первого этажа | Профилированый брус естественной влажности | Профилированый брус естественной влажности | Профилированый брус камерной сушки | Профилированый брус камерной сушки |
| Сечение профилированного бруса | 145х145мм | 195х145мм | 140х140мм | 190х140мм |
| Скрепление венцов | Березовые нагеля и металлические скобы 8х200мм | Березовые нагеля и металлические скобы 8х200мм | Березовые нагеля и металлические скобы 8х200мм | Березовые нагеля и металлические скобы 8х200мм |
| Угловые ссоединения | Теплый угол | Теплый угол | Теплый угол | Теплый угол |
| Межвенцовый утеплитель | Политерм | Политерм | Политерм | Политерм |
| Технология строительства второго этажа | Каркас естественной влажности | Каркас естественной влажности | Каркас камерной сушки | Каркас камерной сушки |
| Толщина каркаса | 100мм | 150мм | 100мм | 150мм |
| Шаг конструктивных элементов каркаса | 590мм | 590мм | 590мм | 590мм |
| Наружная отделка второго этажа | Имитация бруса сорт АБ, 15 мм (сосна) | Имитация бруса сорт АБ, 15 мм (сосна) | Имитация бруса сорт АБ, 15 мм (сосна) | Имитация бруса сорт АБ, 15 мм (сосна). Окраска фасадов и кровельных свесов ТИККУРИЛА. (Цвет на выбор). |
| Внутренняя отделка | - | - | ГКЛВ 12мм | Вагонка Сорт АБ 12мм |
| Настил пола | - | - | Обрезая доска 25х150мм 1 сорт/шпунтованная доска, сорт АВ, 27 мм | Шпунтованная доска, сорт АВ, 27 мм |
| Утепление | - | - | Перекрытия - 100мм, стены 100мм | Перекрытия - 150мм, стены 150мм |
| Звукоизоляция перегородок | - | - | - | 100мм |
| Пароизоляция | - | - | Мембранные пленки | Мембранные пленки |
| Кровля | Оцинкованный профлист Grand Line | Оцинкованный профлист Grand Line | Цветной профлист Grand Line | Металлочерепица Grand Line |
| Ветро-влагоизоляция | Мембранные пленки | Мембранные пленки | Мембранные пленки | Мембранные пленки |
| Окна | - | - | Пластиковые одинарный стеклопакет 800х1000 - 5 шт | Пластиковые двойной стеклопакет 800х1000 - 5 шт |
| Двери входные | - | - | Металлическая Российского производства (эконом) - 1шт | Металлическая Российского производства (оптима) - 1шт |
| Двери межкомнатные | - | 2 шт | 2 шт | |
| Высота потолка | 1-й этаж - 2560 мм, 2-й этаж 2200мм | 1-й этаж - 2560 мм, 2-й этаж 2200мм | 1-й этаж - 2400 мм, 2-й этаж 2100мм | 1-й этаж - 2400 мм, 2-й этаж 2100мм |
| Огнебиозащита | - | - | Обвязочный брус и цокольное перекрытие | Обвязочный брус и цокольное перекрытие |
| Лестница | - | - | Одномаршевая, с перилами и ограждением. | Одномаршевая, с перилами и ограждением. |
| Электропроводка | - | - | - | Комплект проводов, включатель, лампочка, розетка в каждом помещении. Щиток с автоматами. |
| Водосточная система | - | - | - | DОCKE (цвет на выбор) |
| Бесплатный бонус | Установка стягивающих шпилек в стены из профилированного бруса | Замена кровли на цветную или биозащитная обработка цокольного перекрытия | Отделка цоколя фундамента профнастилом или звукоизоляция перегородок | Защита от грызунов или биозащитная обработка каркаса |
| Доставка | Оплачивается дополнительно | |||
| Транспортировка бытовки | Оплачивается дополнительно | |||
| Стоимость | 469 200р. | 576 000р. | 816 800р. | 1 135 200р. |
| Дополнительные услуги: | ||||
| Столбчатый фундамент 400х400х600мм | 14 700р. | |||
| Свайно-винтовой фундамент 108х2500мм | 50 400р. | |||
| Фундамент на забивных железобетонных сваях 150х150х3000мм | 66 000р. | |||
| Отделка цоколя фундамента цветным профнастилом | 15 200р. | |||
Цена: от 469200 руб.
Приобрести в кредитОтзывы
Похожие проекты
Недавно просмотренные
25.03.2025
ОСТАЛИСЬ ВОПРОСЫ?
