Филин 1
Технология строительства:
Каркасная технология
Общая площадь:
165 м2
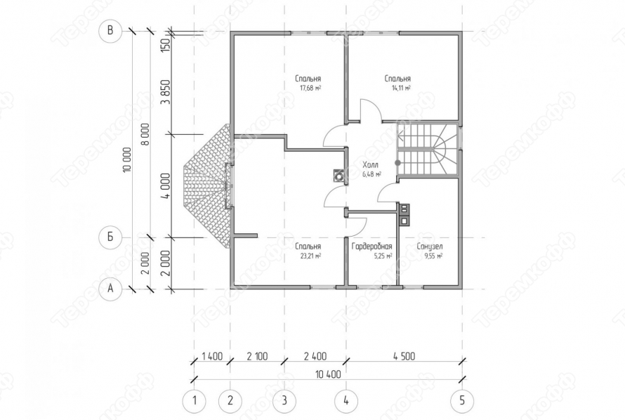
Размеры по фундаменту:
10х10,4 метров
Сроки строительства:
1-2мес
Комплектация
| Комплектация дома | Старт | Оптимум | Максимум | Премиум |
| Линейные размеры | 10х10,4м | 10х10,4м | 10х10,4м | 10х10,4м |
| Общая площадь | 164,03 кв.м. | 164,03 кв.м. | 164,03 кв.м. | 164,03 кв.м. |
| Технология строительства | Каркасная | Каркасная | Каркасная | Каркасная |
| Толщина каркаса | 150мм | 150мм | 150мм | 200мм |
| Толщина стен | 170мм | 217мм | 215мм | 312мм |
| Шаг конструктивных элементов | 590мм | 590мм | 590мм | 590мм |
| Наружная отделка | Белтермо ТОР 20 | Имитация бруса сорт АБ, 15 мм (сосна). | Имитация бруса сорт АБ, 15 мм (сосна). Окраска фасадов и кровельных свесов. (Цвет на выбор). | Сайдинг DОCKE |
| Внутренняя отделка (стены и потолки) | - | ГКЛВ 12мм | ГСП 10мм | Вагонка Сорт АБ 12мм, ГСП(котельная и сан узел) |
| Настил пола | Обрезная доска 25х150мм 1 сорт | Обрезная доска 25х150мм 1 сорт/палубная доска, сорт АВ, 35 мм | Обрезная доска 25х150мм 1 сорт/палубная доска, сорт АВ, 35 мм | Шпунтованная доска, сорт АВ, 27 мм / ЦСП 10мм(на пол в котельной и сан.узле |
| Утепление | - | Стены, пол, потолок 150мм первого и второго этажей | Стены, пол, потолок 150мм первого и второго этажей | Стены, пол, потолок 200мм первого и второго этажей |
| Звукоизоляция внутренних стен и перегородок | - | - | 100мм | 100мм |
| Пароизоляция | - | Мембранные пленки | Мембранные пленки | Мембранные пленки |
| Кровля | Цветной профлист Grand Line | Цветной профлист Grand Line | Металлочерепица Grand Line | Металлочерепица Grand Line |
| Ветро-влагоизоляция | Белтермо ТОР 20 + мембранные пленки | Мембранные пленки | Мембранные пленки | Белтермо ТОР 20 + мембранные пленки |
| Окна | Пластиковые двойной стеклопакет 900х1000-1 шт, 500х1600-1 шт, 800х1800-1 шт, 800х2000-1 шт, 1000х500-1 шт, 1000х1800-2 шт, 1000х2000-2 шт, 1240х400 -1 шт (треуг.), 1600х2000-1 шт, 1400х1600- 5 шт, 2000х1600- 1 шт. Вент. окна: 1000х500-2 шт. | Пластиковые двойной стеклопакет 900х1000-1 шт, 500х1600-1 шт, 800х1800-1 шт, 800х2000-1 шт, 1000х500-1 шт, 1000х1800-2 шт, 1000х2000-2 шт, 1240х400 -1 шт (треуг.), 1600х2000-1 шт, 1400х1600- 5 шт, 2000х1600- 1 шт. Вент. окна: 1000х500-2 шт. | Пластиковые двойной стеклопакет 900х1000-1 шт, 500х1600-1 шт, 800х1800-1 шт, 800х2000-1 шт, 1000х500-1 шт, 1000х1800-2 шт, 1000х2000-2 шт, 1240х400 -1 шт (треуг.), 1600х2000-1 шт, 1400х1600- 5 шт, 2000х1600- 1 шт. Вент. окна: 1000х500-2 шт. | Пластиковые двойной стеклопакет 900х1000-1 шт, 500х1600-1 шт, 800х1800-1 шт, 800х2000-1 шт, 1000х500-1 шт, 1000х1800-2 шт, 1000х2000-2 шт, 1240х400 -1 шт (треуг.), 1600х2000-1 шт, 1400х1600- 5 шт, 2000х1600- 1 шт. Вент. окна: 1000х500-2 шт. |
| Двери входные | Металлическая Российского производства (оптимум) - 2шт | Металлическая Российского производства (оптимум) - 2шт | Металлическая Российского производства (оптимум) - 2шт | Металлическая Российского производства (оптимум) - 2шт |
| Двери межкомнатные | - | - | - | 10шт |
| Высота потолка | 1-й этаж - 2700 мм, 2-й этаж 2600мм | 1-й этаж - 2600 мм, 2-й этаж 2500мм | 1-й этаж - 2600 мм, 2-й этаж 2500мм | 1-й этаж - 2600 мм, 2-й этаж 2500мм |
| Огнебиозащита | Обработка лаг пола | Обработка лаг пола | Обработка всего каркаса | |
| Лестница | Одномаршевая, без перил | Двухмаршевая, с перилами и ограждением. | Двухмаршевая, с перилами и ограждением. | Двухмаршевая, с перилами и ограждением. |
| Водосточная система | - | - | - | DОCKE (цвет на выбор) |
| Бесплатный бонус | --- | Отделка цоколя фундамента профнастилом или звукоизоляция перегородок | Защита от грызунов или биозащитная обработка каркаса | Вентиляция или снегозадержатели Оптима+ |
| Доставка | Оплачивается дополнительно | |||
| Транспортировка бытовки | Оплачивается дополнительно | |||
| Стоимость | 2 812 900р. | 4 106 500р. | Уточните у специалиста | Уточните у специалиста |
| Дополнительные услуги: | ||||
| Свайно-винтовой фундамент 108х2500мм | 155 300р. | |||
| Фундамент на забивных железобетонных сваях 150х150х3000мм | 160 700р. | |||
| Отопление и водоснабжение | 457 900р. | |||
| Электропроводка | 366 300р. | |||
| Канализация | 78 400р. | |||
Цена: от 2812900 руб.
Приобрести в кредитОтзывы
Похожие проекты
Недавно просмотренные
25.03.2025
ОСТАЛИСЬ ВОПРОСЫ?
