Лесной 3
Технология строительства:
Каркасная технология
Общая площадь:
72 м2
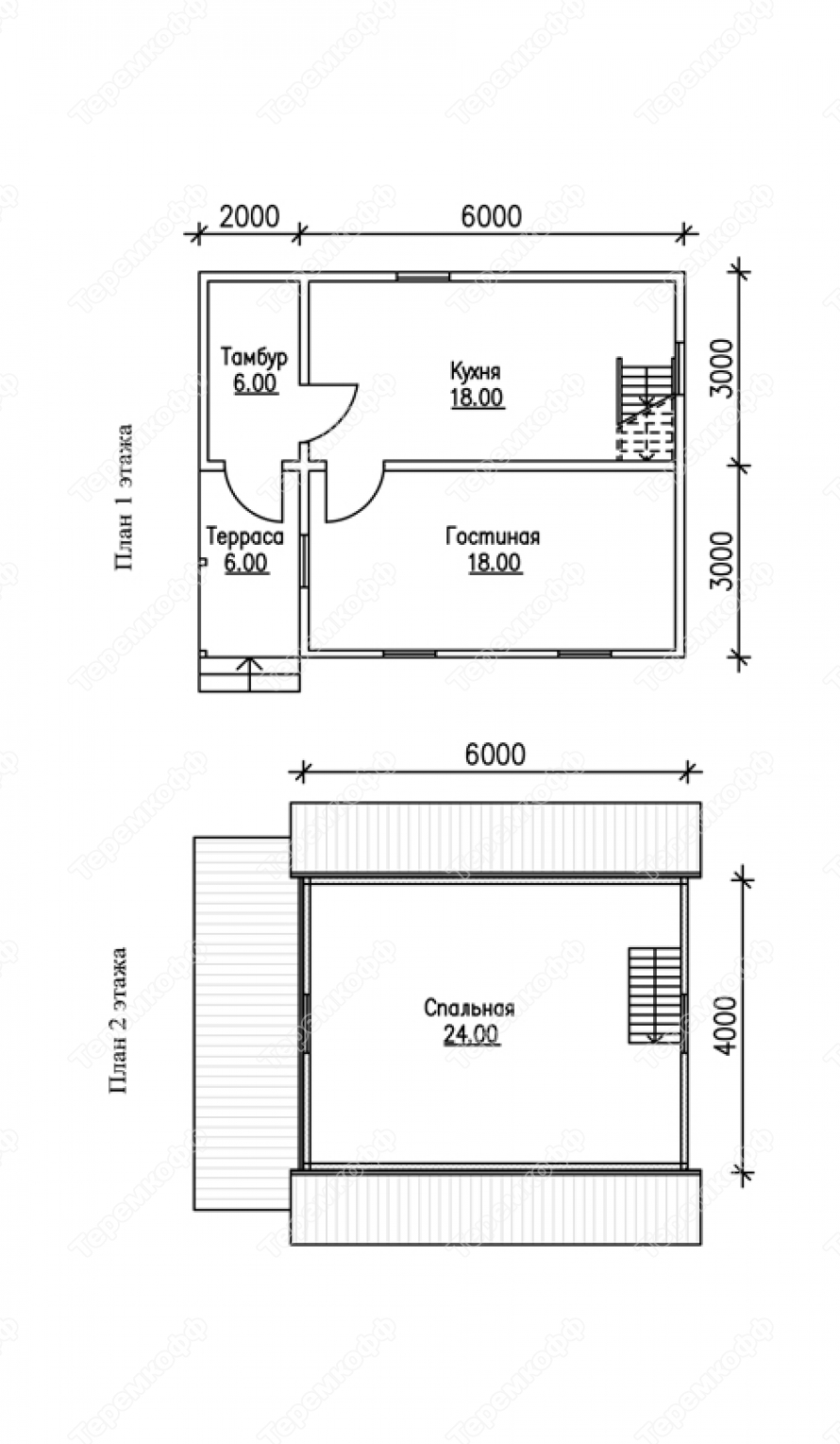
Размеры по фундаменту:
8х6 метров
Сроки строительства:
14 дней
Комплектация
| Комплектация дома | Старт | Оптимум | Максимум | Премиум |
| Линейные размеры | 6х8м | 6х8м | 6х8м | 6х8м |
| Общая площадь | 72 кв.м. | 72 кв.м. | 72 кв.м. | 72 кв.м. |
| Технология строительства | Каркасная | Каркасная | Каркасная | Каркасная |
| Толщина каркаса | 100мм | 100мм | 100мм | 100мм |
| Толщина стен | 140мм | 177мм | 175мм | 223мм |
| Шаг конструктивных элементов | 590мм | 590мм | 590мм | 590мм |
| Наружная отделка | Имитация бруса сорт АБ, 15 мм (сосна) | Имитация бруса сорт АБ, 15 мм (сосна) | Имитация бруса сорт АБ, 15 мм (сосна) | Сайдинг DОCKE + БЕЛПЛИТ |
| Внутренняя отделка | - | ГКЛВ 12мм | ГСП 10мм | Вагонка Сорт АБ 12мм |
| Настил пола | Обрезая доска 25х150мм 1 сорт | Обрезая доска 25х150мм 1 сорт/шпунтованная доска, сорт АВ, 27 мм | Обрезая доска 25х150мм 1 сорт/шпунтованная доска, сорт АВ, 27 мм | Шпунтованная доска, сорт АВ, 27 мм |
| Утепление | - | Стены, пол, потолок 100мм, на первом и втором этажах | Стены, пол, потолок 100мм, на первом и втором этажах | Стены, пол, потолок 100мм, на первом и втором этажах |
| Звукоизоляция перегородок | - | - | - | 100мм |
| Пароизоляция | - | Мембранные пленки | Мембранные пленки | Мембранные пленки |
| Кровля | Оцинкованный профлист Grand Line | Оцинкованный профлист Grand Line | Цветной профлист Grand Line | Металлочерепица Grand Line |
| Ветро-влагоизоляция | Мембранные пленки | Мембранные пленки | Мембранные пленки | Мембранные пленки |
| Окна | Деревянные c одинарным остеклением 800х1000 - 7 шт | Пластиковые одинарный стеклопакет 800х1000 - 7 шт | Пластиковые одинарный стеклопакет 800х1000 - 7 шт | Пластиковые одинарный стеклопакет 800х1000 - 7 шт |
| Двери входные | Филенчатая - 1шт | Металлическая Российского производства (эконом) - 1шт | Металлическая Российского производства (эконом) - 1шт | Металлическая Российского производства (оптима) - 1шт |
| Двери межкомнатные | - | 2шт | 2шт | 2шт |
| Высота потолка | 1-й этаж - 2500 мм, 2-й этаж 2200мм | 1-й этаж - 2400 мм, 2-й этаж 2100мм | 1-й этаж - 2400 мм, 2-й этаж 2100мм | 1-й этаж - 2400 мм, 2-й этаж 2100мм |
| Огнебиозащита | - | - | Обработка лаг пола | Обработка лаг пола |
| Лестница | Одномаршевая, без перил | Одномаршевая, без перил | Одномаршевая, без перил | Одномаршевая, с перилами и ограждением. |
| Электропроводка | - | - | - | Комплект проводов, включатель, лампочка, розетка в каждом помещении. Щиток с автоматами. |
| Водосточная система | - | - | - | DОCKE (цвет на выбор) |
| Бесплатный бонус | --- | Замена кровли на цветную или биозащитная обработка цокольного перекрытия | Отделка цоколя фундамента профнастилом или звукоизоляция перегородок | Защита от грызунов или биозащитная обработка каркаса |
| Доставка | Оплачивается дополнительно | |||
| Транспортировка бытовки | Оплачивается дополнительно | |||
| Стоимость | 335 700р. | 508 800р. | 542 700р. | 766 300р. |
| Дополнительные услуги: | ||||
| Столбчатый фундамент 400х400х600мм | 14 700р. | |||
| Свайно-винтовой фундамент 108х2500мм | 50 400р. | |||
| Фундамент на забивных железобетонных сваях 150х150х3000мм | 66 000р. | |||
Цена: от 335700 руб.
Приобрести в кредитОтзывы
Похожие проекты
Недавно просмотренные
25.03.2025
ОСТАЛИСЬ ВОПРОСЫ?
