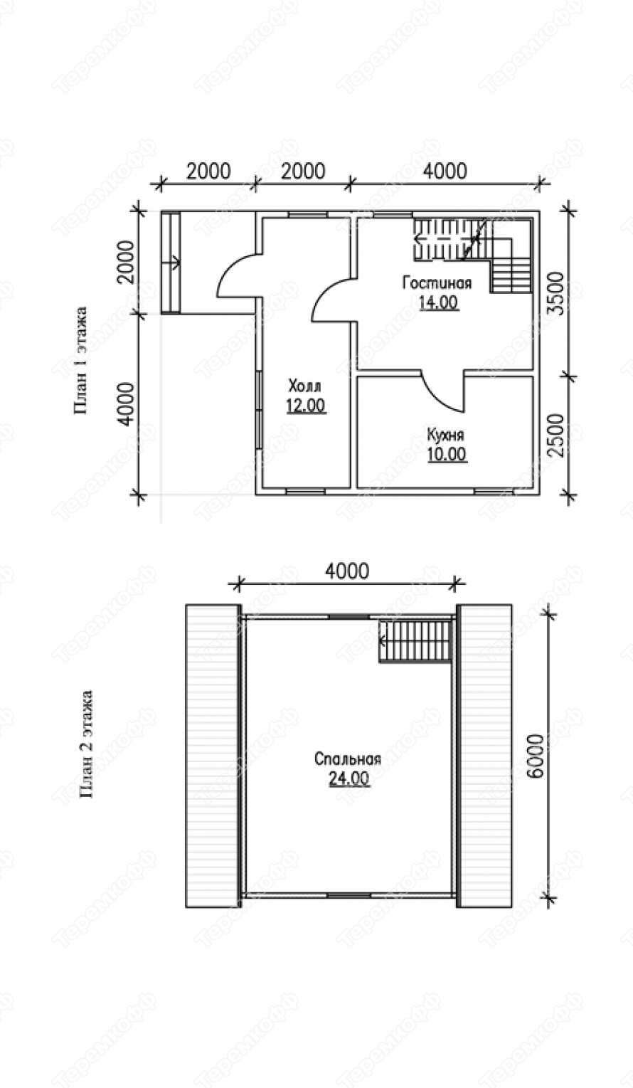
Садовод
Технология строительства:
Профилированный брус
Общая площадь:
60 м2
Размеры по фундаменту:
метров
Сроки строительства:
Комплектация
Цена: от 484100 руб.
Приобрести в кредитОтзывы
Похожие проекты
Недавно просмотренные
25.03.2025
ОСТАЛИСЬ ВОПРОСЫ?
