Ольха
Технология строительства:
Индивидуальные проекты
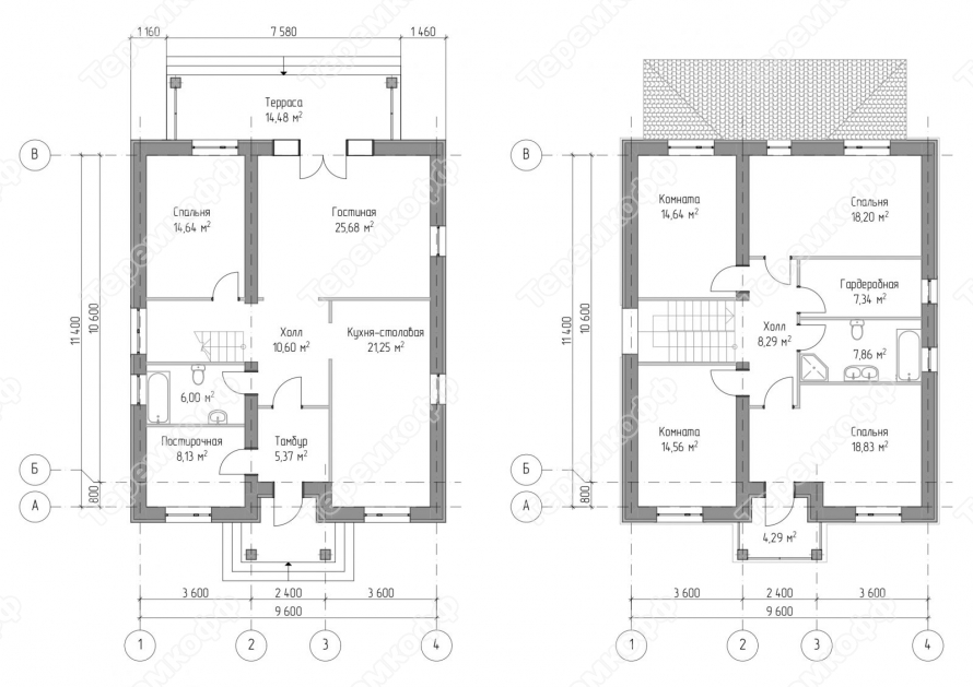
Общая площадь:
204,45 м2
Размеры по фундаменту:
13.5х10 метров
Сроки строительства:
3 месяца
Комплектация
В связи с резким повышением цен на строительные материалы, на данный момент, производится создание нового коммерческого предложения по данному проекту. В ближайшее время вы сможете с ним ознакомиться.
Цена: от 1000000 руб.
Приобрести в кредитОтзывы
Похожие проекты
Недавно просмотренные
25.03.2025
ОСТАЛИСЬ ВОПРОСЫ?
