Сапфир
Технология строительства:
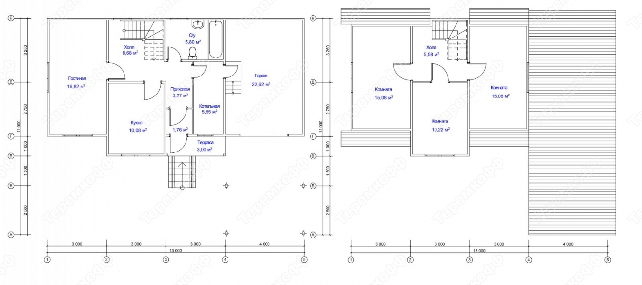
Каркасная технология
Общая площадь:
100,92 м2
Размеры по фундаменту:
11х13 метров
Сроки строительства:
14-30дней
Комплектация
| Комплектация дома | Старт | Оптимум | Максимум | Премиум |
| Линейные размеры | 7х13м | 7х13м | 7х13м | 7х13м |
| Общая площадь | 126,34 кв.м. | 126,34 кв.м. | 126,34 кв.м. | 126,34 кв.м. |
| Технология строительства | Каркасная | Каркасная | Каркасная | Каркасная |
| Толщина каркаса | 100мм | 100мм | 150мм | 150мм |
| Толщина стен | 135мм | 167мм | 215мм | 262мм |
| Шаг конструктивных элементов | 590мм | 590мм | 590мм | 590мм |
| Наружная отделка | Имитация бруса сорт АБ, 15 мм (сосна) | Имитация бруса сорт АБ, 15 мм (сосна) | Имитация бруса сорт АБ, 15 мм (сосна). Окраска фасадов и кровельных свесов . (Цвет на выбор). | Сайдинг DОCKE + Белтермо |
| Внутренняя отделка | - | ГКЛВ 12мм | ГСП 10мм | Вагонка Сорт АБ 12мм |
| Настил пола | Обрезная доска 25х150мм 1 сорт | Обрезная доска 25х150мм 1 сорт/палубная доска, сорт АВ, 35 мм | Обрезная доска 25х150мм 1 сорт/палубная доска, сорт АВ, 35 мм | Шпунтованная доска, сорт АВ, 27 мм |
| Утепление | - | Стены, пол, потолок 100мм, на первом и втором этажах | Стены, пол, потолок 150мм, на первом и втором этажах | Стены, пол, потолок 150мм, на первом и втором этажах |
| Звукоизоляция перегородок | - | - | - | 100мм |
| Пароизоляция | - | Мембранные пленки | Мембранные пленки | Мембранные пленки |
| Кровля | Оцинкованный профлист Grand Line | Цветной профлист Grand Line | Цветной профлист Grand Line | Металлочерепица Grand Line |
| Ветро-влагоизоляция | Мембранные пленки | Мембранные пленки | Мембранные пленки | Мембранные пленки |
| Окна | Пластиковые с одинарным стеклопакетом 1500х1500 - 6шт, 900х1500 - 2шт, 900х1200 - 1шт | Пластиковые с одинарным стеклопакетом 1500х1500 - 6шт, 900х1500 - 2шт, 900х1200 - 1шт | Пластиковые двойной стеклопакет 1500х1500 - 6шт, 900х1500 - 2шт, 900х1200 -1шт | Пластиковые двойной стеклопакет 1500х1500 - 6шт, 900х1500 - 2шт, 900х1200 -1шт |
| Двери входные | Металлическая Российского производства (эконом) - 1шт | Металлическая Российского производства (эконом) - 1шт | Металлическая Российского производства (оптима) - 1шт | Металлическая Российского производства (оптима) - 1шт |
| Двери межкомнатные | 7шт | 7шт | 7шт | |
| Высота потолка | Первый этаж - 2,5м, второй - 2,5м | Первый этаж - 2,4м, второй - 2,4м | Первый этаж - 2,4м, второй - 2,4м | Первый этаж - 2,4м, второй - 2,4м |
| Огнебиозащита | - | - | Обработка лаг пола | Обработка лаг пола |
| Лестница | Одномаршевая, без перил | Двухмаршевая, с перилами и ограждением. | Двухмаршевая, с перилами и ограждением. | Двухмаршевая, с перилами и ограждением. |
| Электропроводка | - | - | - | Комплект проводов, включатель, лампочка, розетка в каждом помещении. Щиток с автоматами. |
| Снегозадержание | - | - | - | Optima+ (цвет на выбор) |
| Водосточная система | - | - | - | DОCKE (цвет на выбор) |
| Бесплатный бонус | --- | Отделка цоколя фундамента профнастилом или биозащитная обработка цокольного перекрытия | Замена профнастила на металлочерепицу или звукоизоляция перегородок | Защита от грызунов или биозащитная обработка каркаса |
| Доставка | Оплачивается дополнительно | |||
| Транспортировка бытовки | Оплачивается дополнительно | |||
| Стоимость | 1 804 000р. | 2 559 800р. | Уточните у специалиста | Уточните у специалиста |
| Дополнительные услуги: | ||||
| Свайно-винтовой фундамент 108х2500мм | 149 500р. | |||
| Фундамент на забивных железобетонных сваях 150х150х3000мм | 154 700р. | |||
| Отделка цоколя фундамента цветным профнастилом | 72 100р. | |||
Цена: от 2559800 руб.
Приобрести в кредитОтзывы
Похожие проекты
Недавно просмотренные
25.03.2025
ОСТАЛИСЬ ВОПРОСЫ?
