Дионис (брус/каркас)
Проект снят с публикации
Технология строительства:
Профилированный брус
Общая площадь:
48 м2
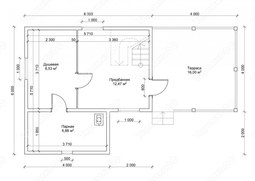
Размеры по фундаменту:
6х10 метров
Сроки строительства:
14-20
Комплектация
| Комплектация бани | Без отделки | Под ключ |
| Технология строительства | Первый этаж - профилированный брус; | |
| Второй этаж - каркас | ||
| Линейные размеры | 6х10м | 6х10м |
| Площадь застройки | 48 кв.м. | 48 кв.м. |
| Фундамент | Винтовые сваи | Винтовые сваи |
| Сечение бруса | 145х145мм | 145х145мм |
| Каркас | 100мм | 100мм |
| Наружная отделка фронтонов и кровельных свесов | Имитация бруса АБ, 15 мм (сосна) | Имитация бруса АБ, 15 мм (сосна) |
| Внутренняя отделка | Вагонка, 12 мм (сосна) | |
| Настил пола | Шпунтованная доска 35мм | |
| Кровля | Цветной профлист | Цветной профлист |
| Утепление | Базальтовая вата, 100мм | |
| Влагоизоляция | Еврокрон | Еврокрон, изоспан |
| Окна | Деревянные с одинарным стеклопакетом - 7шт | |
| Дверь | Металлическая - 1шт, банная – 4 шт | |
| Высота потолка | Первый этаж - 2100мм | |
| Второй этаж - 2200мм | ||
| Печь | Термофор "Тунгуска"с баком на трубе 50л и дымоходом(сэндвич трубы) | |
| Доставка | Оплачивается дополнительно | Оплачивается дополнительно |
| Стоимость | 477 600р. | 794 700р. |
Цена: от 477600 руб.
Приобрести в кредитОтзывы
Похожие проекты
Недавно просмотренные
25.03.2025
ОСТАЛИСЬ ВОПРОСЫ?
