Жара (брус)
Технология строительства:
Профилированный брус
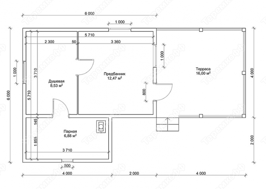
Общая площадь:
48 м2
Размеры по фундаменту:
6х10 метров
Сроки строительства:
14-20
Комплектация
| Комплектация бани | Старт | Оптимум |
| Технология строительства | Профилированый брус естественной влажности | Профилированый брус камерной сушки |
| Линейные размеры | 6х10м | 6х10м |
| Сечение профилированного бруса | 145х145мм | 140х140мм |
| Скрепление венцов | Березовые нагеля и металлические скобы 8х200мм | Березовые нагеля и металлические скобы 8х200мм |
| Угловые ссоединения | Теплый угол | Теплый угол |
| Межвенцовый утеплитель | Политерм | Политерм |
| Сечение силовых элементов кровли и фронтонов | 50х100мм | 50х100мм |
| Шаг конструктивных элементов | 590мм | 590мм |
| Наружная отделка | Имитация бруса сорт АБ, 15 мм (сосна). (потолки террас и балконов, фронтоны и кровельные свесы) | Имитация бруса сорт АБ, 15 мм (сосна). (потолки террас и балконов, фронтоны и кровельные свесы) |
| Внутренняя отделка | - | Вагонка сорт АБ, 12 мм (сосна) |
| Настил пола | - | Шпунтованная доска |
| Утепление потолков | - | Базальтовая вата 100мм |
| Теплоизоляция перегородок | - | Базальтовая вата 100мм |
| Кровля | Оцинкованный профнастил Grand Line | Цветной профлист Grand Line |
| Ветровлагозащита | Мембраны класса "А" и "АМ" | Мембраны класса "А" и "АМ" |
| Пароизоляция | - | Мембраны класса "FB" и "D" |
| Окна | - | Деревянные с одинарным стеклопакетом 1000х500мм – 3 шт., 500х500мм – 1 шт. |
| Входная дверь | - | Банная – 1 шт. |
| Внутренние двери | - | Банные – 2 шт. |
| Высота потолка | 2100мм | 2100мм |
| Огнебиозащита | - | Нижняя обвязка и лаги пола |
| Печь | - | "Волга"с баком на трубе 50л и дымоходом(сэндвич трубы и термозащита) |
| Бесплатный бонус | - | Уточняйте у менеджера |
| Доставка | Оплачивается дополнительно | |
| Транспортировка бытовки | Оплачивается дополнительно | |
| Стоимость | 659 500р. | 1 007 200р. |
| Дополнительные услуги: | ||
| Монтаж столбчатого фундамента из бетонных блоков 200х200х400мм | 29 100р. | |
| Монтаж свайно винтового фундамента (108х2500мм) | 94 100р. | |
| Отделка фундамента цветным профнастилом | 41 100р. | |
| Утепление полов базальтовой ватой 100 мм | 37 200р. | |
| Отделка потолка в парильном помещении липовой вагонкой | 7 700р. | |
| Устройство липовой лавочки 1200х400мм в раздевалку | 8 000р. | |
| Монтаж электропроводки | 14 100р. | |
| Монтаж прямого липового полога в два уровня. | 16 400р. | |
| Устройство водоотведения. Водоприемный колодец из бетонных колец диаметром 1м (два кольца + крышка + люк + канализационная труба до 5 метров) | 39 800р. | |
| Водосточная система | 30 500р. | |
| Устройство вентиляции в парном и помывочном отделениях | 13 700р. | |
| Обустройство топки печи через стену. | 6 100р. | |
Цена: от 659500 руб.
Приобрести в кредитОтзывы
Похожие проекты
Недавно просмотренные
25.03.2025
ОСТАЛИСЬ ВОПРОСЫ?
