Фаворит
Проект снят с публикации
Технология строительства:
Каркасная технология
Общая площадь:
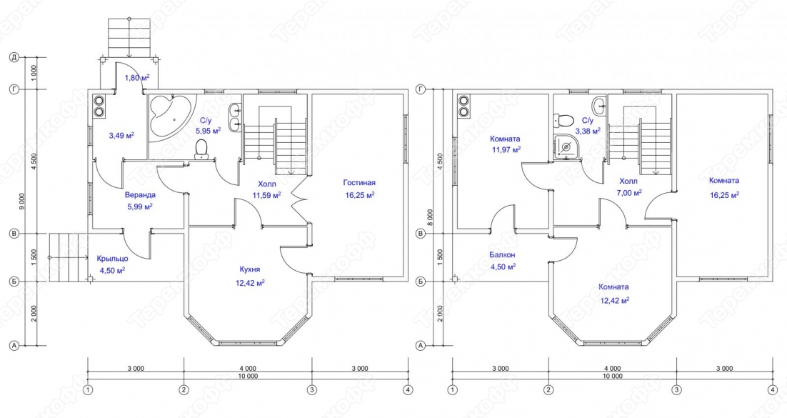
117.5 м2
Размеры по фундаменту:
10х9 метров
Сроки строительства:
14-20
Комплектация
| Комплектация дома | Старт | Оптимум | Максимум | Премиум |
| Линейные размеры | 10х9м | |||
| Общая площадь | 106,7м.кв + террасы 4,5+1,8м.кв + балкон 4,5м.кв | |||
| Технология строительства | Каркас | Каркас | Каркас | Каркас |
| Толщина каркаса | 150 мм | 150 мм | 150 мм | 150 мм+50мм под перекрестное утепление |
| Наружная отделка | ЦСП | Сайдинг DOCKE | Фасадная плитка HAUBERK | Термопанели SPANL или ТЕРМОПАН |
| Ветровлагозашита | Мембрана А | БЕЛТЕРМО ТОП 20мм | Мембрана А | БЕЛТЕРМО ТОП 20мм |
| Высота потолка | 1-й и 2-й этаж – 2500 мм | 1-й и 2-й этаж – 2400 мм | 1-й и 2-й этаж – 2400 мм | 2-й и 2-й этаж – 2400 мм |
| Кровля | Металлочерепица | Металлочерепица | Металлочерепица | Металлочерепица |
| Настил пола | (1этаж)25х150 шаг 350 мм | Шпунтованная доска, 24 мм | Шпунтованная доска, 24 мм | Шпунтованная доска, 24 мм |
| Окна ПВХ с двойным стеклопакетом | 1200х2400 - 1 шт, 1800х1500 - 1 шт, 1000х1500 - 2 шт, 1800х1200 - 1 шт. 1500х1200 - 5 шт, 1000х1200 - шт, 600х1200 - 3. Чердачные окна скошнные 500х700 - 4шт, 400х600 - 4шт. Балконная дверь 800х2100 - 2шт |
|||
| Дверь входная | Металлическая – 2 шт | Металлическая – 2 шт | Металлическая – 2 шт | |
| Двери межкомнатные | Филенчатые - 11шт | Филенчатые - 11шт | Филенчатые - 11шт | |
| Утепление | Минеральная вата KNAUF 150 мм | Базальтовая вата Роклайт 150 мм | Базальтовая вата Роклайт 150 мм +50мм перекрестное утепление | |
| Внутренняя отделка | ГСП | ГСП | ГСП | |
| Лестница | Строганная врезная с перилами и ограждением | Строганная врезная с перилами и ограждением | Строганная врезная с перилами и ограждением | |
| Огнебиозащита | Нижняя обвязка и лаги пола | Нижняя обвязка и лаги пола, каркас дома. | Нижняя обвязка и лаги пола, каркас дома. | |
| Водосточная система | DOCKE | |||
| Стоимость | 475 900р. | Уточните у специалиста | Уточните у специалиста | Уточните у специалиста |
| Дополнительные услуги: | ||||
| Электропроводка | 51 700р. | |||
| Отопление | 138 700р. | |||
| Выгребной колодец | 37 700р. | |||
| Дополнительная обвязка фундамента брусом 200х200мм | 23 900р. | |||
| Свайно-винтовой фундамент | 88 200р. | |||
| Фундамент на забивных железобетонных сваях 150х150х3000мм | 115 500р. | |||
| Буронабивные сваи 250х1500мм | 53 600р. | |||
| Ленточный фундамент | 190 400р. | |||
Цена: от 495900 руб.
Приобрести в кредитОтзывы
Похожие проекты
Недавно просмотренные
25.03.2025
ОСТАЛИСЬ ВОПРОСЫ?
