Летний 4
Технология строительства:
Профилированный брус
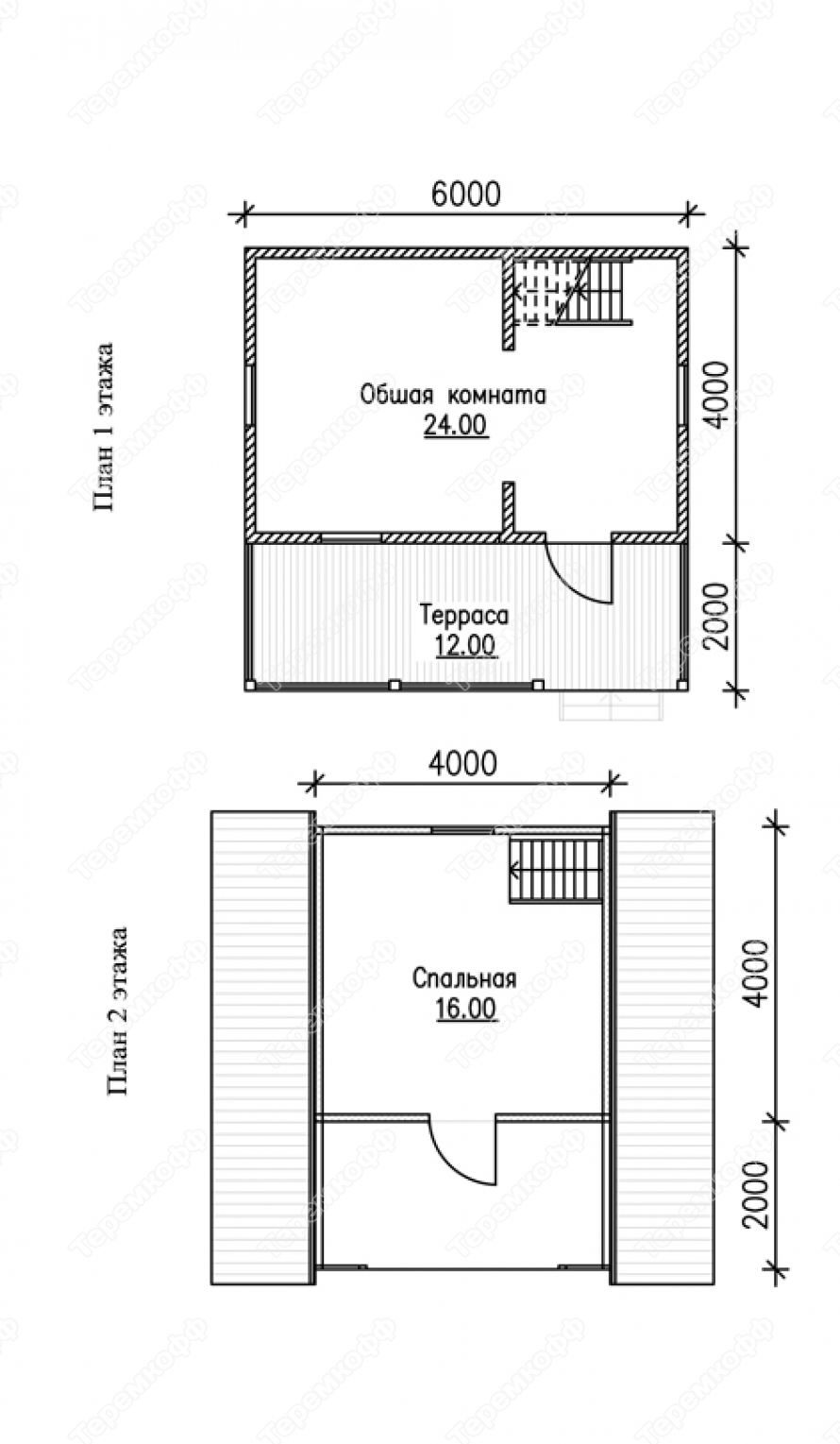
Общая площадь:
 40+12+8 м2
Размеры по фундаменту:
 6х6 метров
Сроки строительства: 
14-20
Комплектация
| Комплектация дома | Садовый дом | Дачный дом | Жилой дом | 
| Линейные размеры | 6х6м | 6х6м | 6х6м | 
| Общая площадь помещений | 40м.кв+12м.кв+8м.кв | 40м.кв+12м.кв+8м.кв | 40м.кв+12м.кв+8м.кв | 
| Профилированный брус | 95х145 | 145х145 | 195х145 | 
| Фундамент | Столбчатый из бетонных блоков с дополнительной обвязкой брусом | Железобетонные сваи 150х150*3000мм с дополнительной обвязкой брусом | Железобетонные сваи 150х150*3000мм с дополнительной обвязкой брусом | 
| Скрепление венцов | На гвозди | Березовые нагеля | Березовые нагеля | 
| Угловое соединение | Теплый угол | Теплый угол | Теплый угол | 
| Толщина каркаса стен 2 этажа | 100мм | 100мм | 150мм | 
| Утепление | 100мм | 100мм | 150мм | 
| Наружная отделка фронтонов | Имитация бруса сорт АВ, 15мм | Имитация бруса сорт АВ, 15мм | Имитация бруса сорт АВ, 15мм | 
| Высота потолка 1 и 2 этажей | 2400 и 2200мм | 2400 и 2200мм | 2400 и 2200мм | 
| Кровля | Профнастил цветной | Профнастил цветной | Металлочерепица | 
| Окна: 800х1000 - 4шт Балконная дверь: 700х2000 - 1шт | Деревянные с одинарным остеклением | Деревянные с одинарным стеклопакетом | Пластик с двойным стеклопакетом | 
| Полы | Шпунтованная доска 35мм | Шпунтованная доска 35мм | Шпунтованная доска 35мм | 
| Входная дверь | Металлическая | Металлическая | Металлическая | 
| Межкомнатная дверь | Филенчатые | Филенчатые | Филенчатые | 
| Внутренняя отделка | Вагонка 12мм | Вагонка 12мм | Вагонка 12мм | 
| Доставка | Оплачивается дополнительно | Оплачивается дополнительно | Оплачивается дополнительно | 
| Стоимость | 480 300р. | 601 900р. | 718 700р. | 
Цена: от 480300 руб.
Приобрести в кредитОтзывы
Похожие проекты
Недавно просмотренные
25.03.2025
ОСТАЛИСЬ ВОПРОСЫ?
