Рубин
Технология строительства:
Профилированный брус
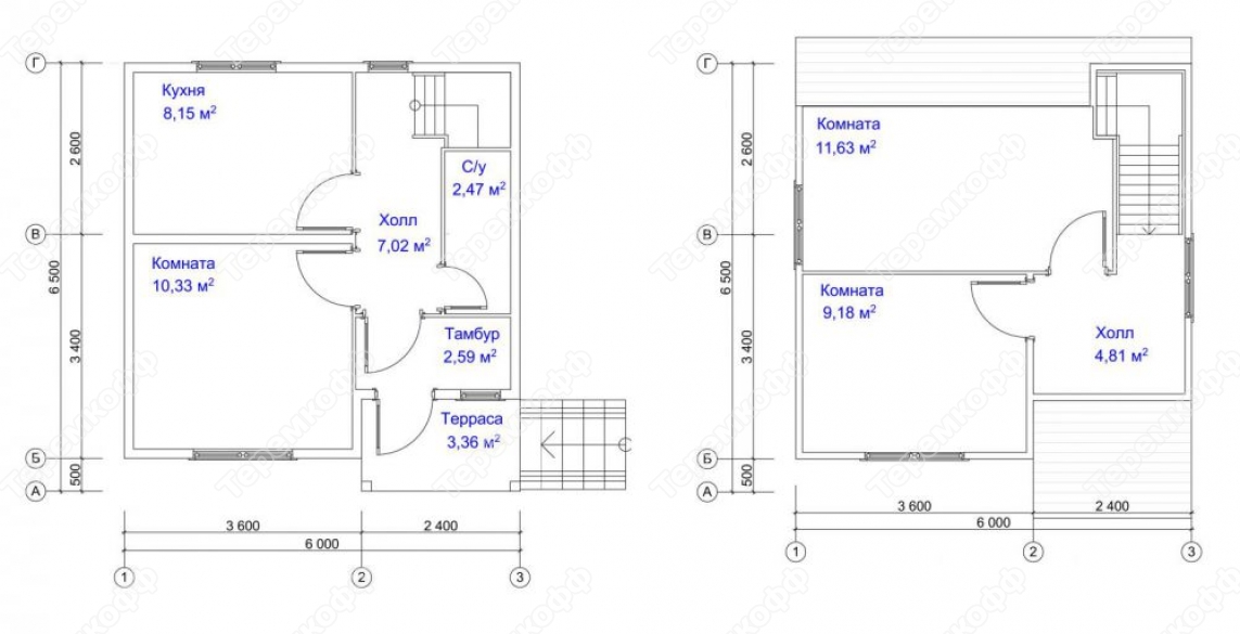
Общая площадь:
59 м2
Размеры по фундаменту:
6х6,5 метров
Сроки строительства:
1 мес
Комплектация
| Комплекта-ция дома | Садовый дом | Дачный дом | Жилой дом |
| Линейные размеры | 6х6,5м | 6х6,5м | 6х6,5м |
| Общая площадь помещений | 58,66м.кв | 58,66м.кв | 58,66м.кв |
| Профилированный брус | 95х145 | 145х145 | 195х145 |
| Фундамент | Столбчатый из бетонных блоков с дополнительной обвязкой брусом | Железобетонные сваи 150х150*3000мм с дополнительной обвязкой брусом | Железобетонные сваи 150х150*3000мм с дополнительной обвязкой брусом |
| Скрепление венцов | На гвозди | Березовые нагеля | Березовые нагеля |
| Угловое соединение | Теплый угол | Теплый угол | Теплый угол |
| Толщина каркаса стен 2 этажа | 100мм | 100мм | 150мм |
| Утепление | 100мм | 100мм | 150мм |
| Наружная отделка фронтонов | Имитация бруса сорт АВ, 15мм | Имитация бруса сорт АВ, 15мм | Имитация бруса сорт АВ, 15мм |
| Высота потолка 1 и 2 этажей | 2500 и 2200мм | 2500 и 2200мм | 2500 и 2200мм |
| Кровля | Профнастил цветной | Профнастил цветной | Металлочерепица |
| Окна: 1500х1200 - 2шт; 1200х1200 - 3шт; 600х1200 - 2шт | Деревянные с одинарным остеклением | Деревянные с одинарным стеклопакетом | Пластик с двойным стеклопакетом |
| Полы | Шпунтованная доска 35мм, сорт АВ | Шпунтованная доска 35мм, сорт АВ | Шпунтованная доска 35мм, сорт АВ |
| Входная дверь | Металлическая | Металлическая | Металлическая |
| Межкомнатные двери | Филенчатые | Филенчатые | Филенчатые |
| Внутренняя отделка | Вагонка 12мм | Вагонка 12мм | Вагонка 12мм |
| Доставка | Оплачивается дополнительно | Оплачивается дополнительно | Оплачивается дополнительно |
| Стоимость | 662 500р. | 801 300р. | 941 500р. |
Цена: от 662500 руб.
Приобрести в кредитОтзывы
Похожие проекты
Недавно просмотренные
25.03.2025
ОСТАЛИСЬ ВОПРОСЫ?
