Штиль
Технология строительства:
Каркасная технология
Общая площадь:
118 м2
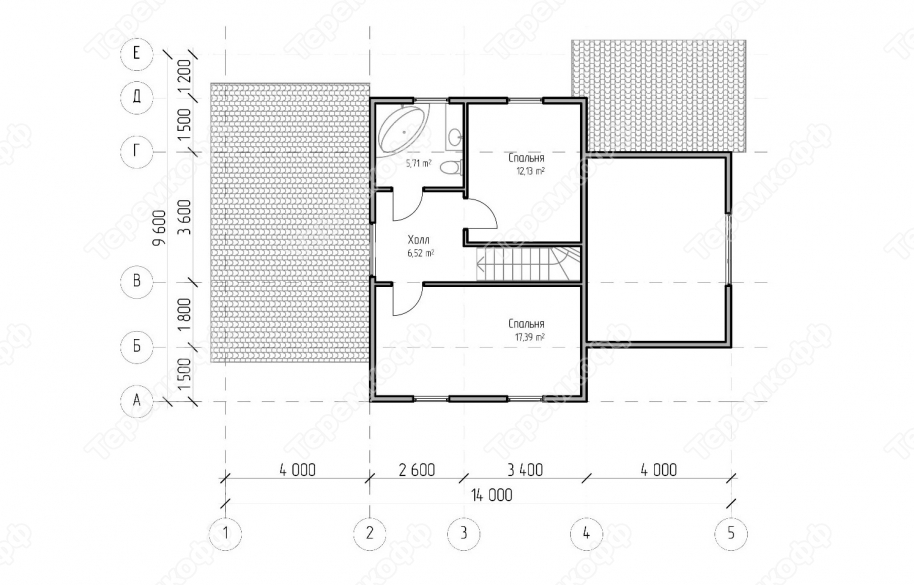
Размеры по фундаменту:
9,6х14 метров
Сроки строительства:
1-2мес
Комплектация
| Комплектация дома | Старт | Оптимум | Максимум | Премиум |
| Линейные размеры | 9,6х14м | 9,6х14м | 9,6х14м | 9,6х14м |
| Общая площадь | 117,36 кв.м | 117,36 кв.м | 117,36 кв.м | 117,36 кв.м |
| Технология строительства | Каркасная | Каркасная | Каркасная | Каркасная |
| Толщина каркаса | 150мм | 150мм | 150мм | 200мм |
| Толщина стен | 170мм | 217мм | 215мм | 312мм |
| Шаг конструктивных элементов | 590мм | 590мм | 590мм | 590мм |
| Наружная отделка | Белтермо ТОР 20 | Имитация бруса сорт АБ, 15 мм (сосна). | Имитация бруса сорт АБ, 15 мм (сосна). Окраска фасадов и кровельных свесов. (Цвет на выбор). | Сайдинг DОCKE |
| Внутренняя отделка (стены и потолки) | - | ГКЛВ 12мм | ГСП 10мм | Вагонка Сорт АБ 12мм, ГСП(котельная и сан узел) |
| Настил пола | Обрезная доска 25х150мм 1 сорт | Обрезная доска 25х150мм 1 сорт/палубная доска, сорт АВ, 35 мм | Обрезная доска 25х150мм 1 сорт/палубная доска, сорт АВ, 35 мм | Шпунтованная доска, сорт АВ, 27 мм / ЦСП 10мм(на пол в котельной и сан.узле |
| Утепление | - | Стены, пол, потолок 150мм первого и второго этажей | Стены, пол, потолок 150мм первого и второго этажей | Стены, пол, потолок 200мм первого и второго этажей |
| Звукоизоляция внутренних стен и перегородок | - | - | 100мм | 100мм |
| Пароизоляция | - | Мембранные пленки | Мембранные пленки | Мембранные пленки |
| Кровля | Цветной профлист Grand Line | Цветной профлист Grand Line | Металлочерепица Grand Line | Металлочерепица Grand Line |
| Ветро-влагоизоляция | Белтермо ТОР 20 + мембранные пленки | Мембранные пленки | Мембранные пленки | Белтермо ТОР 20 + мембранные пленки |
| Окна | Пластиковые двойной стеклопакет 500х650-1 шт, 500х1500-1 шт, 800х1500-1 шт, 1500х1500-3 шт, 2000х1500-1 шт. Скош.: 1000х1500-4 шт, 1500х1500-1 шт, 2000х1500-1 шт. Дверь на террасу 900х2100-1 шт. | Пластиковые двойной стеклопакет 500х650-1 шт, 500х1500-1 шт, 800х1500-1 шт, 1500х1500-3 шт, 2000х1500-1 шт. Скош.: 1000х1500-4 шт, 1500х1500-1 шт, 2000х1500-1 шт. Дверь на террасу 900х2100-1 шт. | Пластиковые двойной стеклопакет 500х650-1 шт, 500х1500-1 шт, 800х1500-1 шт, 1500х1500-3 шт, 2000х1500-1 шт. Скош.: 1000х1500-4 шт, 1500х1500-1 шт, 2000х1500-1 шт. Дверь на террасу 900х2100-1 шт. | Пластиковые двойной стеклопакет 500х650-1 шт, 500х1500-1 шт, 800х1500-1 шт, 1500х1500-3 шт, 2000х1500-1 шт. Скош.: 1000х1500-4 шт, 1500х1500-1 шт, 2000х1500-1 шт. Дверь на террасу 900х2100-1 шт. |
| Двери входные | Металлическая Российского производства (оптимум) - 2шт | Металлическая Российского производства (оптимум) - 2шт | Металлическая Российского производства (оптимум) - 2шт | Металлическая Российского производства (оптимум) - 2шт |
| Двери межкомнатные | - | - | - | 7шт |
| Высота потолка | 1-й этаж - 2600 мм, 2-й этаж 2400мм | 1-й этаж - 2500 мм, 2-й этаж 2300мм | 1-й этаж - 2500 мм, 2-й этаж 2300мм | 1-й этаж - 2500 мм, 2-й этаж 2300мм |
| Огнебиозащита | Обработка лаг пола | Обработка лаг пола | Обработка всего каркаса | |
| Лестница | Одномаршевая, без перил | Двухмаршевая, с перилами и ограждением. | Двухмаршевая, с перилами и ограждением. | Двухмаршевая, с перилами и ограждением. |
| Водосточная система | - | - | - | DОCKE (цвет на выбор) |
| Бесплатный бонус | --- | Отделка цоколя фундамента профнастилом или звукоизоляция перегородок | Защита от грызунов или биозащитная обработка каркаса | Вентиляция или снегозадержатели Оптима+ |
| Доставка | Оплачивается дополнительно | |||
| Транспортировка бытовки | Оплачивается дополнительно | |||
| Стоимость | 2 585 800р. | 3 655 900р. | Уточните у специалиста | Уточните у специалиста |
| Дополнительные услуги: | ||||
| Свайно-винтовой фундамент 108х2500мм | 166 800р. | |||
| Фундамент на забивных железобетонных сваях 150х150х3000мм | 172 600р. | |||
| Отопление и водоснабжение | 308 700р. | |||
| Электропроводка | 247 000р. | |||
| Канализация | 78 400р. | |||
Цена: от 2585800 руб.
Приобрести в кредитОтзывы
Похожие проекты
Недавно просмотренные
25.03.2025
ОСТАЛИСЬ ВОПРОСЫ?
